|
 |
|
Villette a schiera in classe energetica A3
In fregio a via Napoleonica, siamo in procinto di realizzare 3 villette a schiera indipendenti di nuovissima concezione, capaci di abbinare la affidabilità delle strutture tradizionali con le più moderne innovazioni tecnologiche finalizzate al massimo confort e risparmio energetico.
La struttura è in muratura portante parzialmente armata, coibentata con cappotto esterno da cm. 10. Elevatissime coibentazioni sono realizzate anche sotto i pavimenti e nel sottotetto. Ogni villetta è fornita di pannelli solari fotovoltaici intergati a tetto.
Ogni villetta presenta superficie a verde esclusiva. La zona living è a piano terra/rialzato, mentre i servizi sono ubicati a piano seminterrato.
Possibilità di personalizzazione in ogni fase della costruzione.
Villetta 1 (di testa)
A piano rialzato: Ingresso/soggiorno, cucina abitabile, 3 camere da letto, bagno e ripostiglio con possibilità di realizzare un secondo bagno.
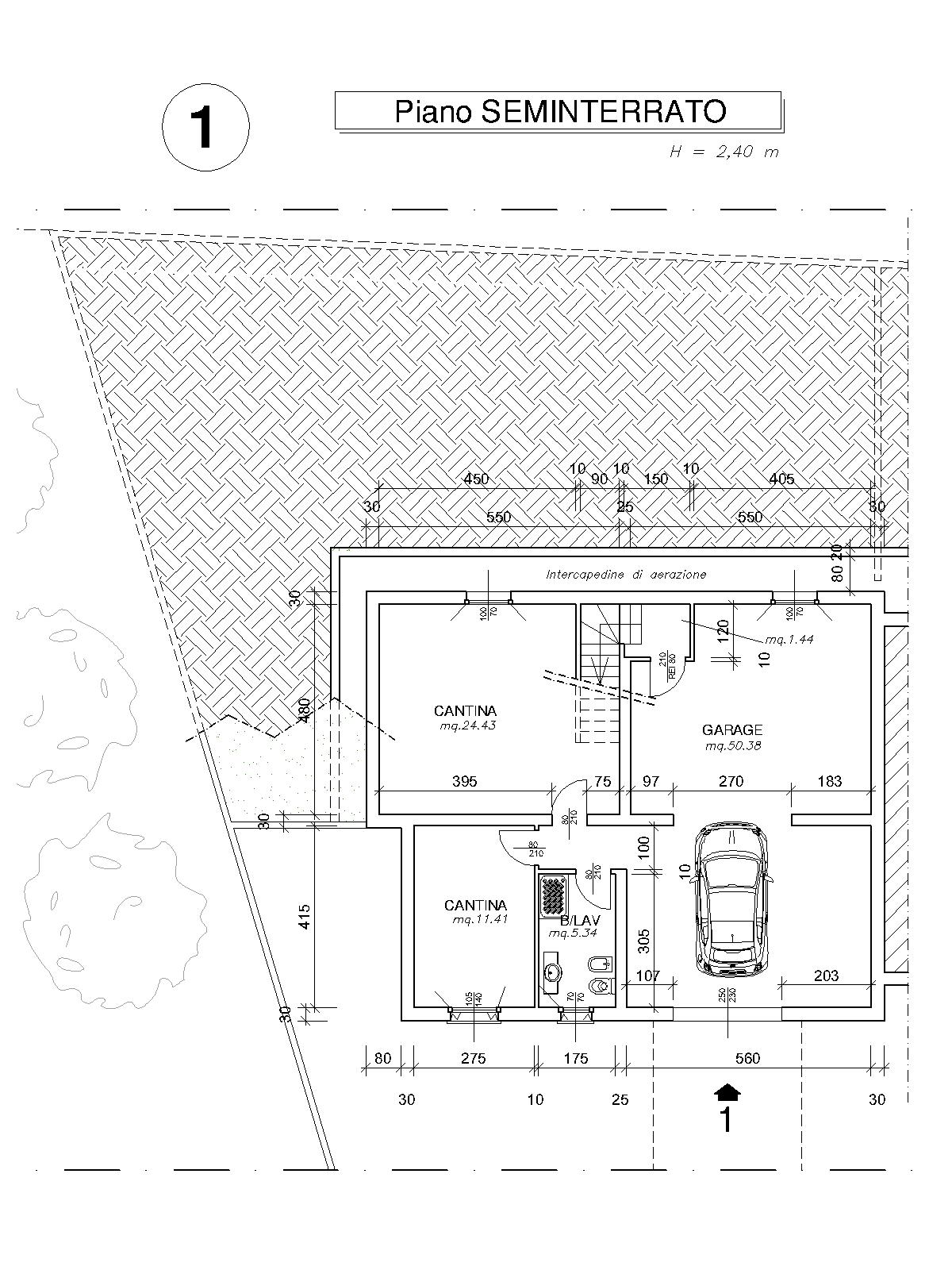
A piano seminterrato: Ampio garage, cantina, locale di servizio e bagno.
Villetta 2 (centrale)
A piano rialzato: Ingresso su cottura/soggiorno, due camere da letto e bagno.
A piano seminterrato: Ampio garage, cantina, locale di servizio e bagno.
Villetta 3 (di testa)
A piano rialzato: Ingresso/soggiorno, cucina abitabile, 3 camere da letto e bagno.
A piano seminterrato: Ampio garage, 2 cantine, bagno/lavanderia.
 |